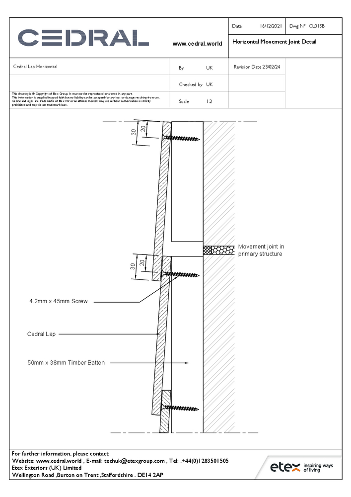
Installation
Cedral Lap Panel Joint Detail - Horizontal
Panel joint detail when installing Cedral Lap horizontally
Unfortunately, we didn't find any results for your search.