Cedral Facades document centre
Installation
Cedral Lap Panel Joint Detail - Horizontal
Panel joint detail when installing Cedral Lap horizontally
Installation
Cedral Lap Vertical Movement Joint Detail - Horizontal
Vertical movement joint detail for installing Cedral Lap horizontally
Installation
Cedral Lap Sloping Soffit Detail - Horizontal
Sloping soffit detail for installing Cedral Lap horizontally
Installation
Cedral Lap Top With Flashing Detail - Horizontal
Top with flashing detail for installing Cedral Lap horizontally
Installation
Cedral Lap Horizontal Movement Joint Detail - Horizontal
Horizontal movement joint detail when installing Cedral Lap horizontally
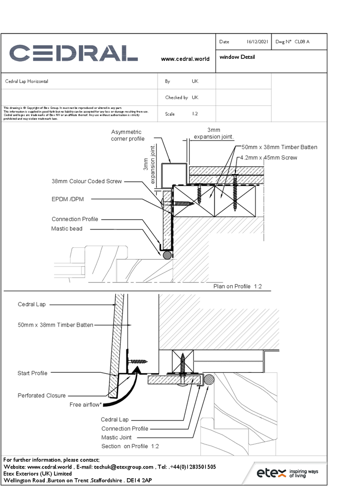
Installation
Cedral Lap Window Detail - Horizontal
Window detail for installing Cedral Lap horizontally
No results
Unfortunately, we didn't find any results for your search.