Tehniline joonis
Ventilatsiooniga fassaadi rinnatis paigaldamine
Cedral Classic Ventilatsiooniga fassaadi rinnatis paigaldamine
Tehniline joonis
Ventilatsiooniga fassaadi rinnatis paigaldamine
Cedral Classic Ventilatsiooniga fassaadi rinnatis paigaldamine
Tehniline joonis
Ventilatsiooniga fassaadi rinnatis paigaldamine
Cedral Classic Ventilatsiooniga fassaadi rinnatis paigaldamine
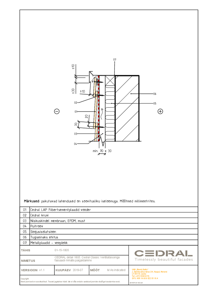
Tehniline joonis
Ventilatsiooniga fassaadi paigaldamine
Cedral Classic Ventilatsiooniga fassaadi paigaldamine, väljaspoolnurka
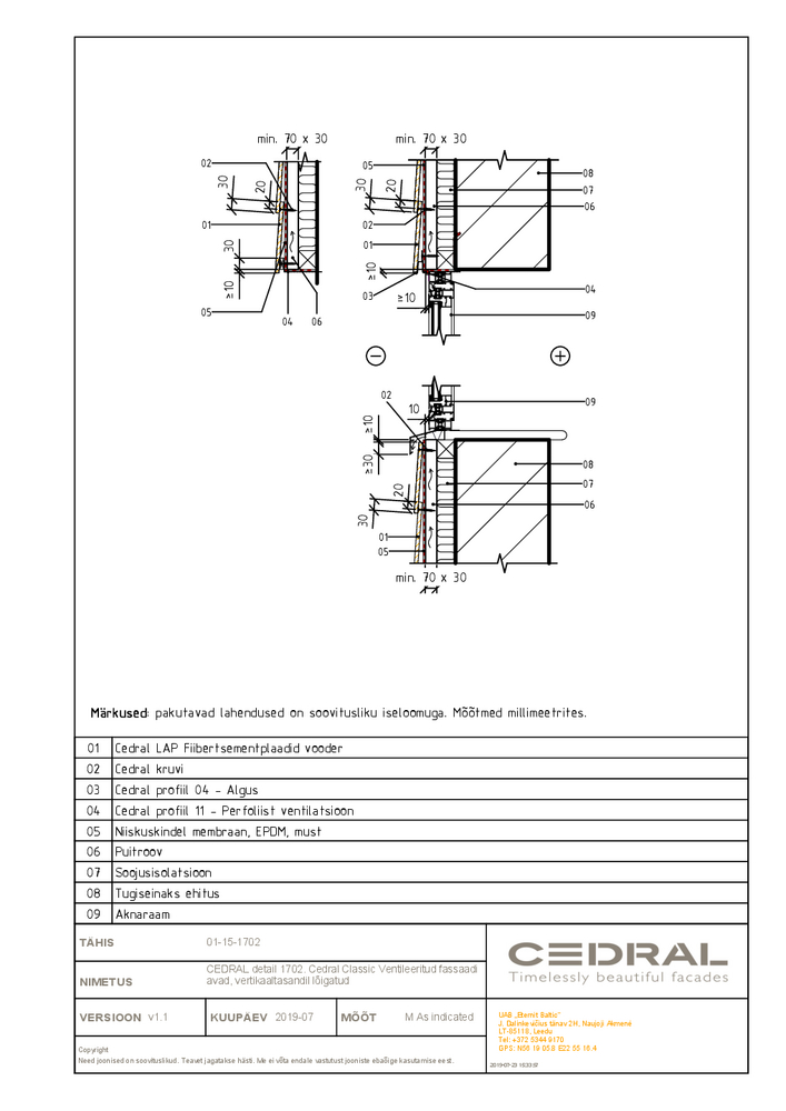
Tehniline joonis
Ventileeritud fassaadi avad
Cedral Classic Ventileeritud fassaadi avad, vertikaaltasandil lõigatud
Tehniline joonis
Ventileeritud fassaadi avad
Cedral Classic Ventileeritud fassaadi avad, horisontaalselt lõigatud
Tulemusi pole
Kahjuks ei leidnud me teie otsingu kohta tulemusi.