Tehniline joonis
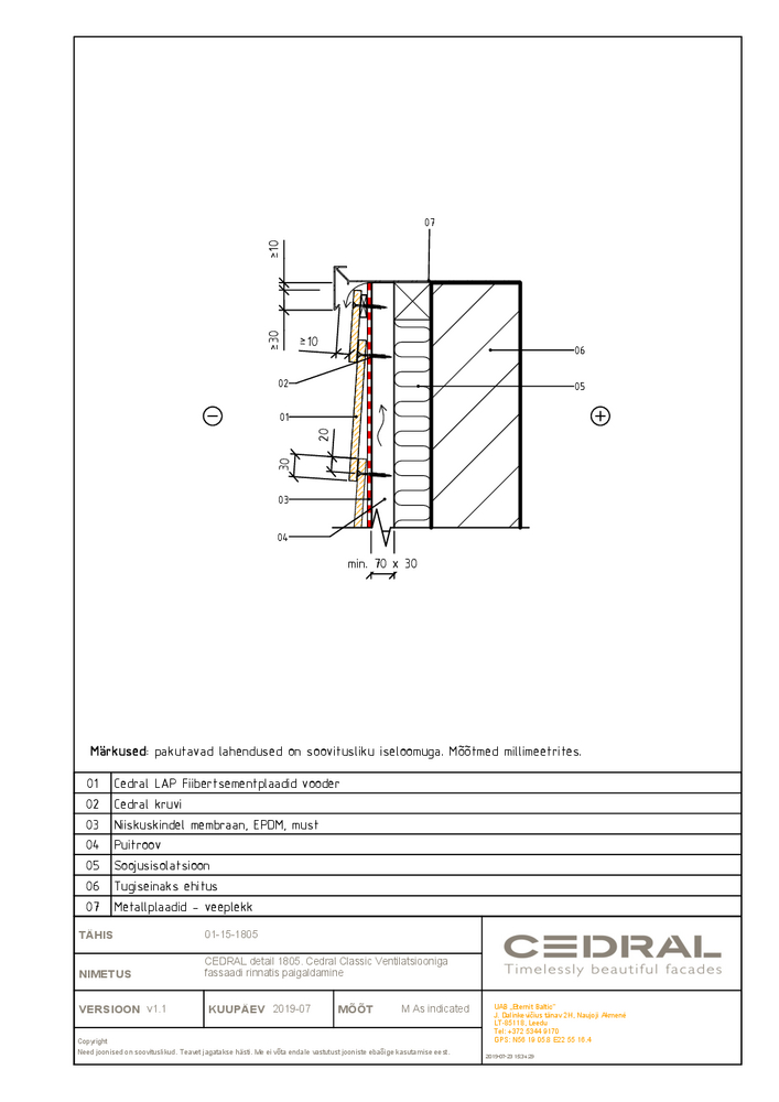
Ventilatsiooniga fassaadi rinnatis paigaldamine
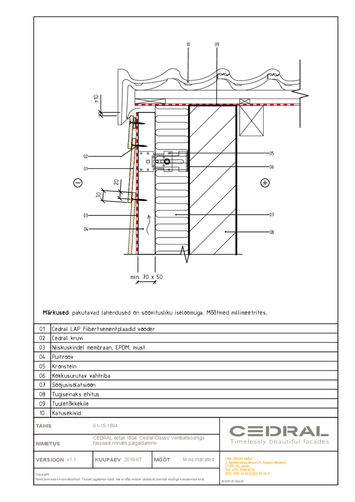
Cedral Classic Ventilatsiooniga fassaadi rinnatis paigaldamine
Tehniline joonis
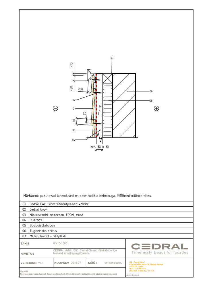
Ventilatsiooniga fassaadi rinnatis paigaldamine
Cedral Classic Ventilatsiooniga fassaadi rinnatis paigaldamine
Tehniline joonis
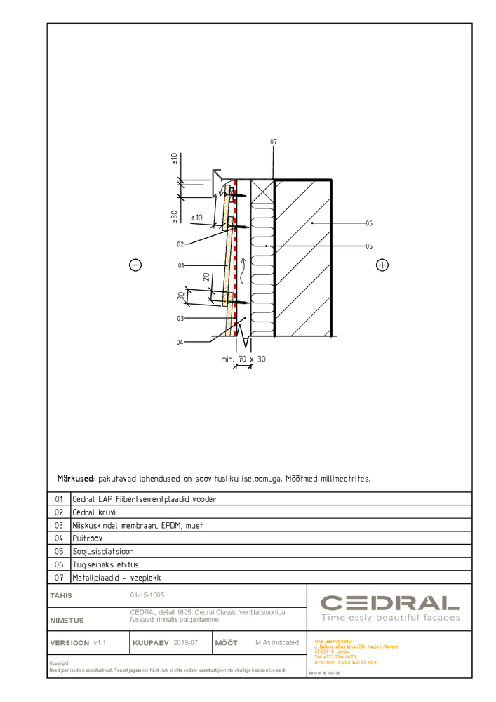
Ventilatsiooniga fassaadi rinnatis paigaldamine
Cedral Classic Ventilatsiooniga fassaadi rinnatis paigaldamine
Tehniline joonis
Ventilatsiooniga fassaadi paigaldamine
Cedral Classic Ventilatsiooniga fassaadi paigaldamine, väljaspoolnurka
Tehniline joonis
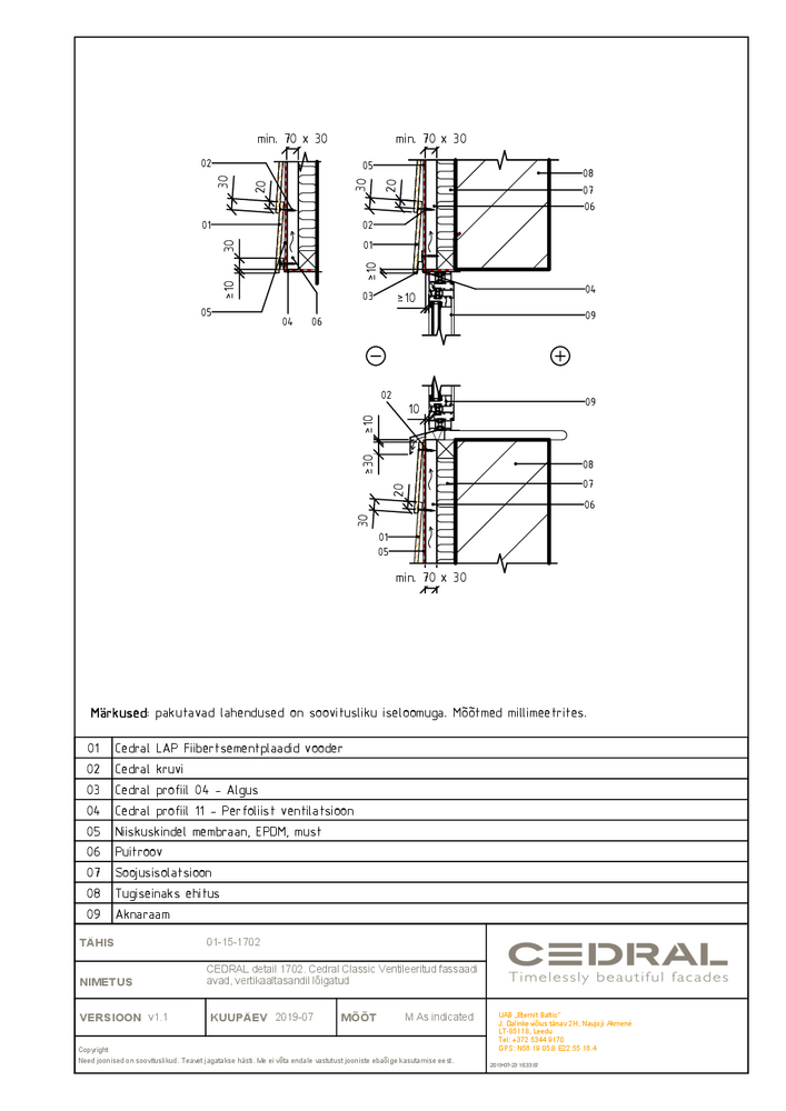
Ventileeritud fassaadi avad
Cedral Classic Ventileeritud fassaadi avad, vertikaaltasandil lõigatud
Tehniline joonis
Ventileeritud fassaadi avad
Cedral Classic Ventileeritud fassaadi avad, horisontaalselt lõigatud
Tulemusi pole
Kahjuks ei leidnud me teie otsingu kohta tulemusi.