Eterspan
Eterspan
Les panneaux Eterspan sont des plaques planes en fibres-ciment mises en œuvre dans la construction résidentielle et utilitaire principalement comme plaque de support pour couverture asphaltique.
La sous-toiture Eterspan bénéficie d’une garantie de 10 ans sur les propriétés physiques.

- la pente minimale du toit est de 2% pour éviter la stagnation d'eau
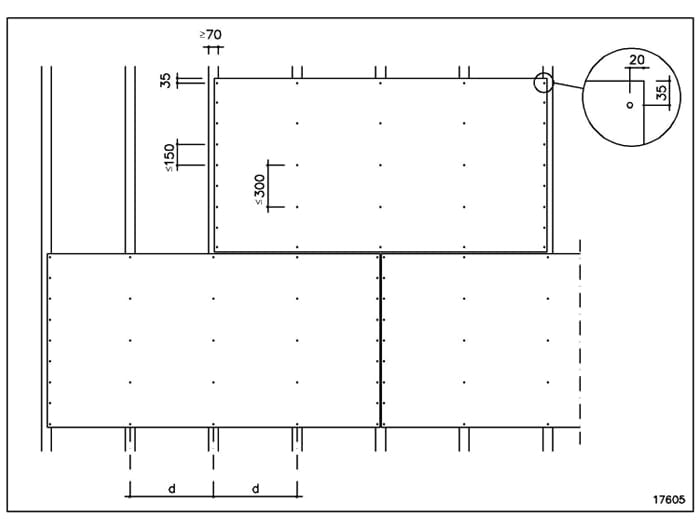
- les plaques sont placées sous la forme d'un demi-appareil et les jointures entre les plaques doivent toujours correspondre avec les solives d'appui
- chaque plaque doit reposer sur au moins 3 solives d'appui

- des joints de dilatation sont prévus entre les plaques
- en guise de moyens de fixation, on peut utiliser des vis à tête noyée ou des clous à tête plate en matériaux résistant à la corrosion (acier inoxydable, acier galvanisé)
- la profondeur de pénétration de la vis ou du clou (a) est de minimum deux fois l'épaisseur de la plaque
Le tableau ci-dessous indique la charge répartie maximale par simple portée, calculée sur base d'un facteur de sécurité de 3 et d'un fléchissement maximal de l/300, y compris le propre poids.
|
Charge maximale (kg/m²) par portée (facteur de sécurité = 3, fléchissement < l/300) y compris le propre poids
|
||||
|---|---|---|---|---|
| Épaisseur | Portée |
600
|
500
|
400
|
|
mm
|
mm
|
mm
|
mm
|
|
|
18
|
simple |
-
|
241
|
480
|
| double |
-
|
366
|
579
|
|